+7 (812) 223-43-08

Каркасный дом 12x10 Проект "Эльбаит"

Каркасный дом 12x10 Эльбаиткаркасный дом 12x10 Эльбаит СПбпроект каркасного дома Эльбаит 12x10 СПбкаркасный дом Эльбаит 12x10 под ключкаркасный дом Эльбаит под ключ

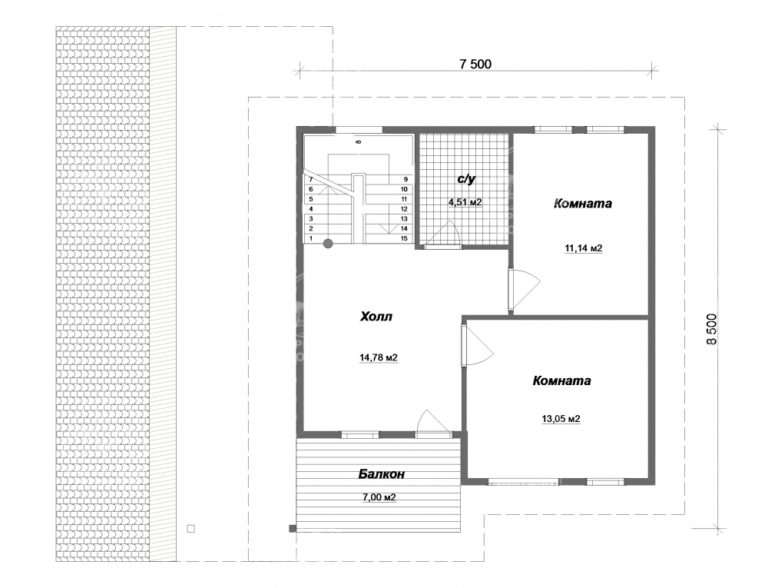
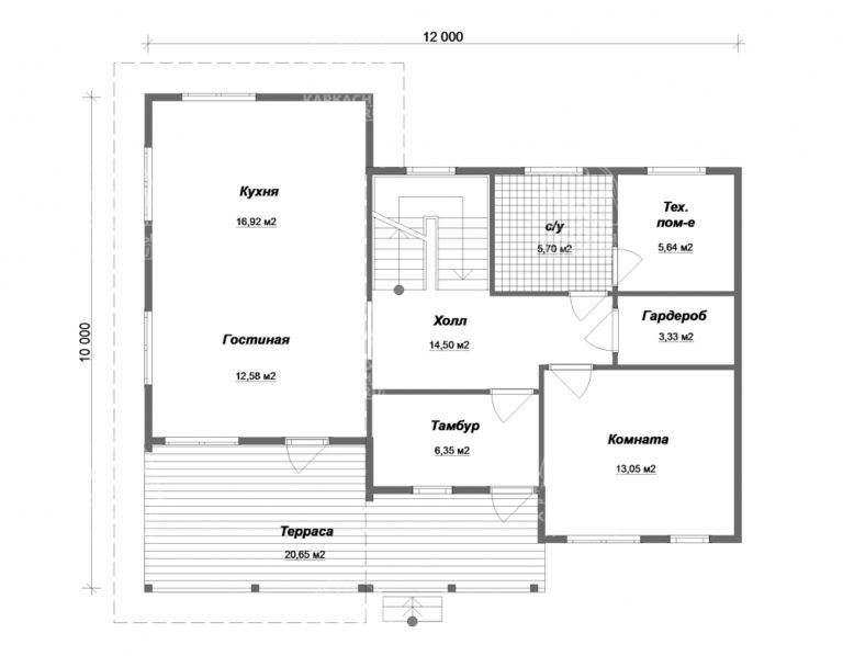
Планировка проекта

Особенности проекта

Срок строительства от 30 дней
Площадь 157
Размер 12x10
Этажность полутораэтажный
Особенности гостиная-кухня, два санузла, техническое помещение, гардероб, тамбур, три комнаты, два холла, балкон, большая терраса, двухуровневая односкатная крыша
Проживание зима, лето
Районы строительства СПб и Ленинградская область

Цена под ключ

Базовый (каркас под крышу) 2 869 789
Стандарт (сезонное проживание) по запросу
Комфорт (круглогодичное проживание) по запросу

Каркасный дом 12x10 Проект "Эльбаит"

Перезвоним через пару минут и проконсультируем по всем вопросам строительства каркасного дома
Выберите нужное
Нажимая на кнопку, вы принимаете Положение и Согласие на обработку персональных данных

Стоимость строительства каркасного дома 12x10 под ключ проект "Эльбаит"

Предлагаем три варианта комплектации
Базовый
Базовый

Это силовой каркас дома с наружной отделкой и кровлей. Что входит: каркас дома с внешней отделкой садингом «Döcke» Standart, однокамерные стеклопакеты, кровля‑металлочерепица. Без внутренней отделки и утепления.

Стандарт
Стандарт

К базовой комплектации добавляется внутренняя отделка стен, пола и потолка, межкомнатные двери. А также, утепеление всего дома. Оптимальная комплектация для сезонного проживания.

Комфорт
Комфорт

Данная комплектация предназначена для круглогодичного проживания. К комплектации «Стандарт» добавляются ветрозащитные плиты МДВП, дополнительное утепление, двухкамерные стеклопакеты, что повышает энергоэффективность дома. Наружная отделка дома сайдингом «Döcke» Premium.

Комплектация дома "Эльбаит" (можно внести изменения по желанию заказчика)
Базовый каркас под крышу
Стандарт сезонное проживание
Комфорт круглогодичное проживание
Стоимость комплектации (включено: доставка, материалы, работа)
2 869 789
по запросу
по запросу
Силовые конструкции
<b>Наружные стены:</b> доска камерной сушки 50×150 мм
Наружные стены: доска камерной сушки 50×150 мм
<b>Перегородки:</b> доска камерной сушки 50×100/150 мм
Перегородки: доска камерной сушки 50×100/150 мм
<b>Лаги перекрытий:</b> доска камерной сушки 50×150 мм
Лаги перекрытий: доска камерной сушки 50×150 мм
<b>Лаги перекрытий:</b> доска камерной сушки 50х200 мм
Лаги перекрытий: доска камерной сушки 50х200 мм
<b>Стропильная система:</b> доска камерной сушки 50х150 мм
Стропильная система: доска камерной сушки 50х150 мм
<b>Стропильная система:</b> доска камерной сушки 50х200 мм
Стропильная система: доска камерной сушки 50х200 мм
Крыша
<b>Кровельное покрытиe:</b> Металлочерепица «Супермонтеррей»
Кровельное покрытиe: Металлочерепица «Супермонтеррей»
<b>Водосточная система:</b> ПВХ «Döcke»
Водосточная система: ПВХ «Döcke»
Снегозадержатели металлические
Снегозадержатели металлические
Вентиляционные выходы "Vilpe" 
Вентиляционные выходы "Vilpe" 
Наружная отделка
Виниловый сайдинг "Docke" Standart
Виниловый сайдинг "Docke" Standart
Виниловый сайдинг "Docke" Premium
Виниловый сайдинг "Docke" Premium
Ветрозащитные плиты МДВП " Белтермо", шип-паз
Ветрозащитные плиты МДВП " Белтермо", шип-паз
Защита от грызунов
Защита от грызунов
Окна и двери
Однокамерные металлопластиковые окна ПВХ. Профиль 58-62 мм
Однокамерные металлопластиковые окна ПВХ. Профиль 58-62 мм
Двухкамерные металлопластиковые окна ПВХ. Профиль 70 мм
Двухкамерные металлопластиковые окна ПВХ. Профиль 70 мм
Входная металлическая дверь "Практик". Производство Россия, НПО "Промет".
Входная металлическая дверь "Практик". Производство Россия, НПО "Промет".
Входная металлическая дверь "Винтер", с терморазрывом. Производство Россия, НПО "Промет".
Входная металлическая дверь "Винтер", с терморазрывом. Производство Россия, НПО "Промет".
Деревянные межкомнатные двери
Деревянные межкомнатные двери
Утепление и пароизоляция
<b>Наружные стены:</b> 150 мм Rockwool
Наружные стены: 150 мм Rockwool
<b>Перегородки:</b> 100 мм Rockwool
Перегородки: 100 мм Rockwool
<b>Пол 1 этажа, перекрытия и кровля:</b> 150 мм Knauf
Пол 1 этажа, перекрытия и кровля: 150 мм Knauf
<b>Пол 1 этажа, перекрытия и кровля:</b> 200 мм Rockwool
Пол 1 этажа, перекрытия и кровля: 200 мм Rockwool
Пароизоляция с проклейкой швов
Пароизоляция с проклейкой швов
Внутренняя отделка
<b>Отделка потолка и стен: </b>вагонка, камерной сушки
Отделка потолка и стен: вагонка, камерной сушки
<b>Отделка потолка и стен:</b> имитация бруса, камерной сушки
Отделка потолка и стен: имитация бруса, камерной сушки
<b>Пол:</b> шпунтованная половая доска, камерной сушки
Пол: шпунтованная половая доска, камерной сушки
<b>Пол:</b> влагостойкая шпунтованная плита Quick Deck 22 мм, по обрешетки из доски камерной сушки
Пол: влагостойкая шпунтованная плита Quick Deck 22 мм, по обрешетки из доски камерной сушки
Межэтажная лестница
Межэтажная лестница
Терраса, крыльцо
Пол, потолок, ограждения
Сборка и доставка
Сборка дома на участке
Доставка и выгрузка материалов 50 км от КАД
На время строительства предоставляется бытовка
Не нашли подходящий проект?
Этажность
Выберите количество этажей для каркасного дома
Тип дома
Выберите необходимый тип постройки каркасного дома
Вариант строительства
Выберите ваш вариант строительства
Цена
Выберите приемлемую для вас цену на каркасный дом
Размер дома
Выберите необходимый размер каркасного дома
Площадь дома
Выберите площадь каркасного дома
Конструктив
Выберите необходимый конструктив для каркасного дома
Стиль дома
Выберите в каком стиле вы бы хотели построить каркасный дом
Район строительства
Выберите в каком районе планируете строительство каркасного дома
Желаемый способ оплаты
Выберите удобный для вас способ оплаты за стротельство каркасного дома
Пожелания и комментарий по строительству
Как вас зовут
Ваш телефон
Нажимая на кнопку, вы принимаете Положение и Согласие на обработку персональных данных
Санкт-ПетербургМоскваПсков
Ленинградская областьПушкинТосноВыборгСестрорецкПриозерскБокситогорскГатчинаЛодейное ПолеВолосовоКингисеппЛомоносовСланцыВолховВсеволожскКиришиЛугаТихвинКировскПодпорожье