







Индивидуальное проектирование позволяет сэкономить в среднем 10-20 % бюджета на строительство дома
Стоимость от 390 руб/кв.м.Подробнее ➜Первым и самым важным этапом является создание образа вашего идеального дома. Поэтому мы вместе с вами будем разбираться, какие ключевые потребности и особеннсоти должны быть заложены при проектировании.
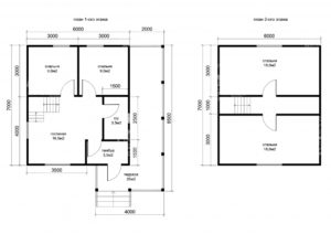
Вариантов на самом деле очень много, поэтому предстоит плотная работа с вашими запросами и воображением
После чего, мы переносим образ вашего идеального дома в рабочую документацию, для его дальнейшего строительства.
При проектировании дома мы учитываем все силовые нагрузки, с проработкой всех конструктивных узлов.
150×150×2500 мм — от 3 950 ₽ за 1 шт.
150×150×3000 мм — от 4 550 ₽ за 1 шт.
150×150×3500 мм — от 5 150 ₽ за 1 шт.
89D×2500 мм — от 3 150 ₽ за 1 шт.
108D×2500 мм — от 3 500 ₽ за 1 шт.
133D×2500 мм — от 4 250 ₽ за 1 шт.
300×600 мм — от 4 300 ₽ за 1 пог. м
300×800 мм — от 4 300 ₽ за 1 пог. м
300×1000 мм — от 5 570 ₽ за 1 пог. м
толщина 250 мм — от 5 550 ₽ за кв.м
толщина 300 мм — от 5 900 ₽ за кв.м
толщина 350 мм — от 6 150 ₽ за кв.м
Цены указаны за монтажные работы. Стоимость материалов рассчитывается индивидуально, исходя из проекта и пожеланий заказчика.
Компания была образована в г. Великий Новгород, в 2014 году. Однако, начали свою деятельность в начале 90-х годов, с заготовки леса в Архангельской и Вологодской областей. В начале 2000-х строили дачные дома и монтировали фундаменты. За это время мы приобрели колоссальный опыт в строительстве каркасных и других деревянных домов из профилированного и клееного бруса, оцилиндрованного и строганного бревна, начиная с фундамента и заканчивая крышей здания.
В поисках надежной и оптимальной технологии строительства загородного дома я посетил множество стран. Такие как Финляндия,
Германия,
Швеция,
Норвегия,
Дания,
Англия,
США. Кроме этого, обучался у лучших мастеров плотницкого дела
России,
Белоруссии,
Украины и
Эстонии.
И на сегодняшний день без преувеличения могу сказать, что мы одна из лучших частных компаний по строительству загородных каркасных домов в Санкт-Петербурге и Ленинградской области. Данные дома предназначены для круглогодичного и сезонного проживания. В них вам будет удобно и комфортно во все времена год
У нас собственное производство пиломатериалов и отличные партнеры/поставщики, которые известны на строительном рынке. Это крупные компании: «Петрович», «Top House», «Технониколь», сеть оконных заводов «Стандарт», «Knauf», «Onduline», «Rockwool», «Grand Line», «Металл Профиль», «Döcke», «Сваи ГОСТ», «Коломяки», «Биодевайс» и другие. Со всеми компаниями имеем договора и соглашения
Таким образом, имеется возможность скомплектовать дом качественными, разнообразными материалами и доставить их на ваш земельный участок.
Профессионализм обогащается нашим опытом строительства и внедрением новых технологий. Постоянно мониторим, изучаем технологии каркасного строительства передовых стран: Финляндии, Норвегии, Швеции, США, Эстонии, Японии, Канады.
Даже нужно!
Здесь уместна такая поговорка — «Умный строит зимой, а богатый летом»
Мы строим по всей России, сейчас в основном работаем в Москве и Московской области, в Санкт-Петербурге и Ленинградской области.
У нас вы можете заказать весь комплекс работ от проектирования до подключения бытовой техники в построенном доме::
Есть два варианта.
1. Без фиксирования цены в договоре:
2. Фиксирование цены в договоре (например, если до начала строительства сильно подорожают материалы, цена в договоре не изменится):
При строительстве каркасных домов мы даем обязательную гарантию 5 лет с момента сдачи объекта. Гарантия распространяется на:
Мы так же предлагаем расширенную гарантию до 25 лет. Подробности уточняйте у менеджеров.

















